
Bienvenue
Mes quatres années d’études passées m’ont permises d’acquérir de nombreuses compétences et une certaine maturité. Cela s’est fait par les experiences profesionnelles,
personnelles et les différents projets réalisés. Sensible à l’environnement, je vois aujourd’hui dans notre métier la possibilité de défendre et mettre en avant les enjeux climatiques.

This is 20px paragraph text. Edit the text then connect it to a theme so it will match the site.
Powered by WD Strategies.
HUUB.ste est une résidence étudiante situé à Saint-Etienne. Ce travail de groupe a été traité en globalité, ici nous voyons uniquement le RDC bas consacré aux restaurants et espaces publics.
HUBB.ste
Architecture intérieure
Projet d'école
2023
Mon travail
Mon cheminement
Le projet a été une vraie réflexion autour des typologies de caractère. On a pu identifier six types d'étudiants et ainsi adapter les services et les volumes en fonction.
Nous avons pensé à quelque chose de modulable et ludique, à la manière de Matalie Crasset.
L'idée est de retrouver plusieurs cubes, qui, assemblés forment un canapé, une chaise, ou un fauteuil. Chacun pourra confectionner son propre meuble.
.module
Design d'objet
Projet d'école
2023
Mon cheminement
Ce projet est lié au HUBB.ste. Il s'oriente autour des typologies d'étudiants et de leur mode de vie.
Cette partie de design mobilier a été pensé avec des matériaux sourcés localement.
Le loft est un lieu de vie atypique au cœur de Lyon. Issu de la conversion d'un bâtiment industriel en un logement haut de gamme. Ces 3D ont été réalisées pour de la promotion immobilière.
Le Loft
Architecture intérieure
Projet Personnel
2022
Mon cheminement
Le projet a été le sujet d'une réflexion autour de la courbe du soleil et la lumière naturelle.
Des grandes verrières apportent une grande capacité d'éclairement.
Les objectifs étaient les suivants :
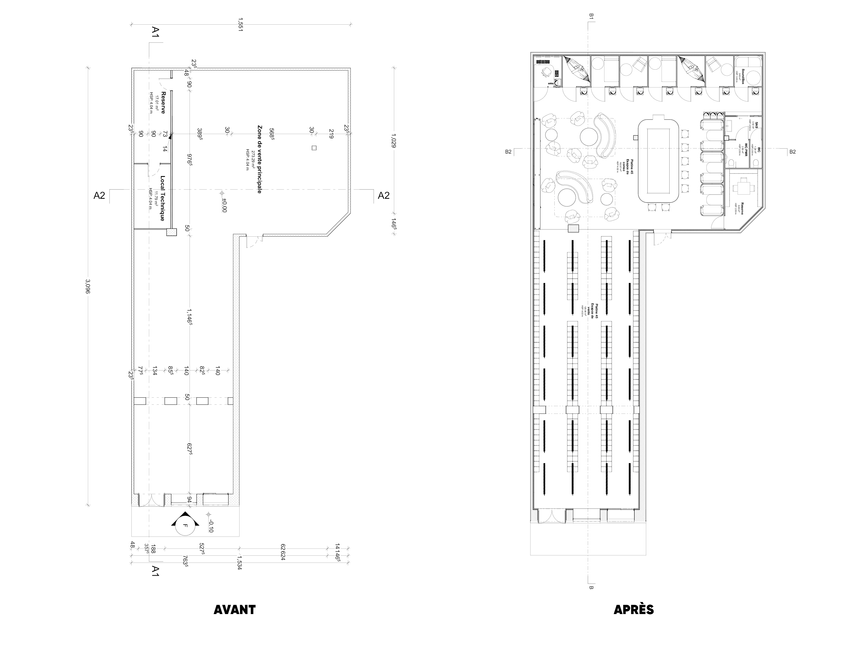
- retranscrire l’ADN d'une marque implantée uniquement en ligne;
- penser un espace dans l’air du temps en cohérence avec les valeurs de Angarde, tant dans le concept esthétique que dans la réalisation.
Angarde
Architecture intérieure
Projet d'école
2021-22
Mon cheminement
Pour Angarde, la conception durable est au cœur du projet. Ainsi, les matériaux sont sourcés localement et produits de façon durable et responsable.
Le possibilité d'imaginer un lieu de vie dans son intégralité ...
Au cours de ma deuxième année d'étude à CREAD, j'ai eu l'occasion de repenser l'aménagement d'une villa de 200 m2, sur 3 étages.
Mêson
Architecture intérieure
Projet d'école
2020-21
Mon cheminement
La conception de la maison est pensée avec l'environnement qui l'entour. Cela offre un grand apport de lumière et de chaleur naturelle.
J'ai eu l'opportunité de participer à un projet de rénovation pour lequel on m'a demandé une proposition d'aménagement accompagnée de rendus 3D.
Rue des plantes
Architecture intérieure
Projet personnel
2020
Mon cheminement
Dans un appartement parisien, il est important d'apporter de la lumière et de la clarté., notamment avec des couleurs et des peintures faibles en COV.
A présent, je souhaite vous parler d'un de mes loisirs : la photographie.
Shooting photographie
Passion
Projets personnel
2020
Mon cheminement
Cette activité me plaît particulièrement car elle m'offre la possibilité d'ouvrir mon champ de vision.
Je m'explique : cela me permet de mieux appréhender le cadrage, les jeux de lumières, les couleurs et l'ensemble des ambiances qui sont créées.



























































